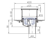
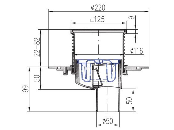
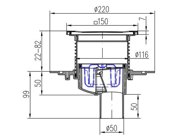
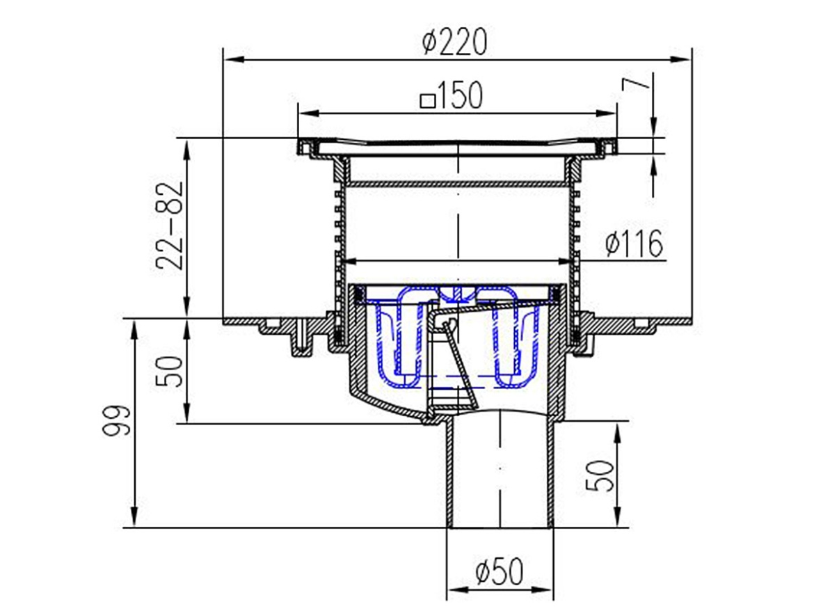
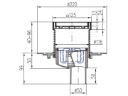
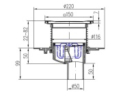
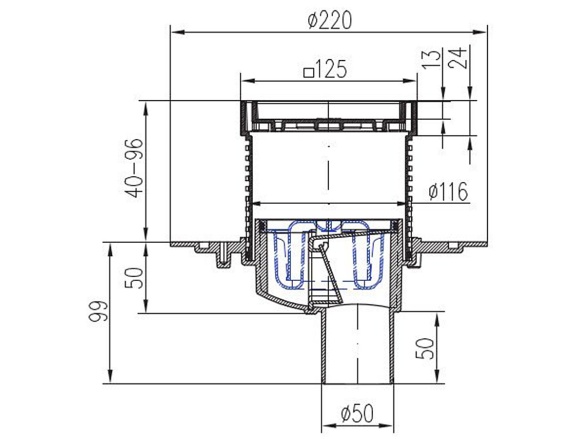
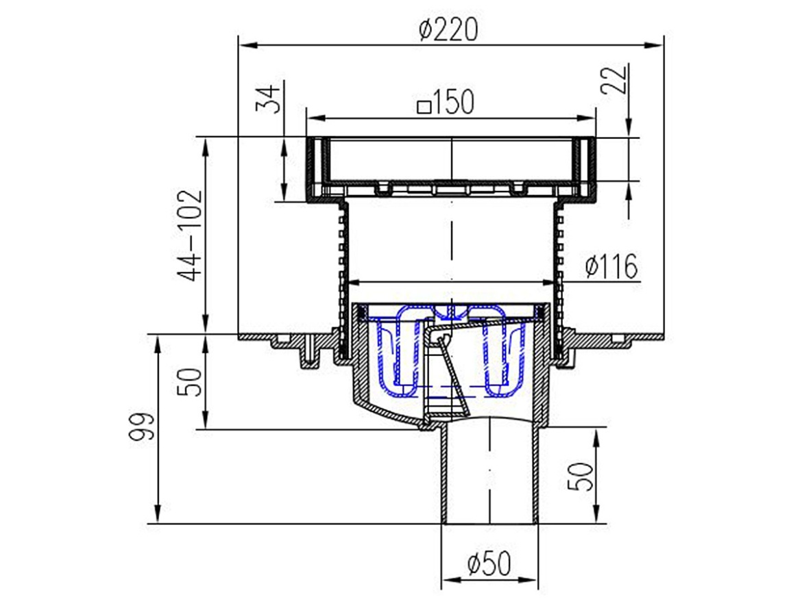
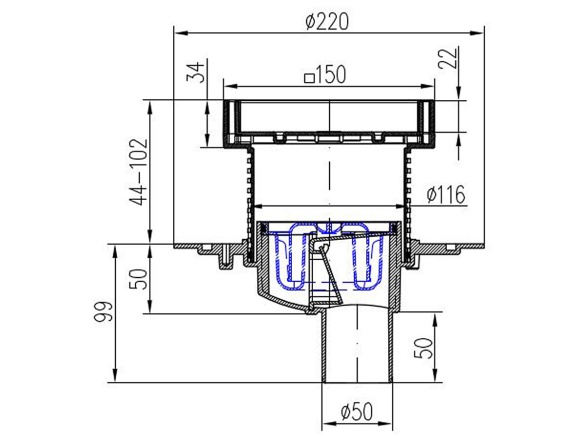
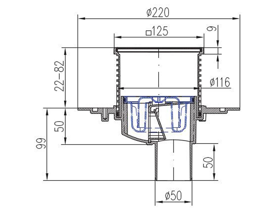
Univerzální konfigurovatelná vpusť s dvojitým protizápachovým systémem pro využití i do exteriéru. Vyrobeno z PP, PS a nerezové oceli, volitelný design mřížky s možností pro zadláždění, volba příruby, lze zabudovat pro spodní odtok D 50.
Podrobné info
Inštalácia |
|
| Kotvenie | betonáž |
|---|---|
| Pripojenie spodné | D50 |
| Pripojenie bočné | nie |
Zaťaženie |
|
| Trieda zaťaženia | K3 |
| Nosnosť | 0,3 t |
| Norma | EN 1253 |
Rošt |
|
| Otvory | áno |
| Uchytenie | skrutkové |
| Antikorózna ochrana | nerez |
| Materiál roštu | oceľ / polypropylén |
| Farba | strieborná |
| Tvar | hranatý |
| Rozmery | 125 × 125 mm / 150 × 150 mm |
Vpusť |
|
| Materiál vpustu | polypropylén |
| Farba | čierna, šedá |
| Tvar | kruhový |
| Výška | 121 – 181 / 139 – 197 / 143 – 201 mm |
Perametre |
|
| Pôvod | Vyrobené v ČR |
| Záruka | 2 roky |
| Značka | Chuděj |
| Parametry produktu: | |
Chuděj PVSU 50 je univerzální spodní podlahová vpusť vhodná pro koupelny, technické místnosti, kuchyně, balkony nebo terasy. Slouží pro soustavu potrubního vedení uvnitř budovy odvádějící odpadní vodu přes kanalizační přípojku z nemovitosti do veřejné kanalizace, případně přímo do domovní čistírny odpadních vod, septiků. Třída zatížení K3, tepelná odolnost do 90 °C, zkoušeno dle normy EN 1253.
Volitelný výběr mřížky umožňuje volbu ze šesti různých provedení designu. Stříbrná mřížka je vyrobena z nerezové oceli DIN 1.4301 nebo z plastu, které zaručují odolnost vůči korozi, okolnímu namáhání a rozdílným teplotám vody. Nerezová mřížka Ceramics slouží pro možnost zadláždění.
Obsahuje suchou klapku (56 - 70 l / min) a vodní hladinu (30 - 37 l / min), které zabraňují zpětnému šíření zápachu z kanalizace a také nehrozí zamrznutí vody uvnitř vpusti. Tělo vpusti je vyrobeno z polypropylenu a umožňuje volbu o vybavení nerezovou přírubu s 5 ks šroubů pro snadnou montáž hydroizolačních materiálů. Výšku vpusti lze uživatelsky upravit dle potřeb pomocí pilky.
Náhradní nástavec pro podlahové vpusti Chuděj v celoplastovém provedení nebo s nerezovým rámečkem o rozměru 125 x 125 mm.
Kulatý nástavec pro podlahové vpusti Chuděj v celoplastovém provedení pro nerezovou mřížku o průměru 137 mm
Náhradní nástavec pro podlahové vpusti Chuděj v nerezovém provedení o rozměru 150 x 150 mm.
Náhradní nástavec s nerezovým rámečkem a možností volby s celonerezovým povrchem nebo s možností pro zadláždění. Rozměry činí 125 x 125 mm
Náhradní nástavec s nerezovým rámečkem a možností volby s celonerezovým povrchem nebo s možností pro zadláždění. Rozměry činí 150 x 150 mm
Náhradní podstavec pro nástavec 125 s možností volby s celonerezovým povrchem nebo s možností pro zadláždění. Rozměr činí 125 x 125 mm.
Náhradní podstavec pro nástavec 150 s možností volby s celonerezovým povrchem nebo s možností pro zadláždění. Rozměr činí 150 x 150 mm.
Voliteľná mriežka pre podlahové vpusty Chudej z nerezovej ocele DIN 1.4301 o sile 1,5 mm pre nadstavec 125 × 125 mm.
Okrúhla mriežka pre kanalizačné a podlahové vpusty Chudej z nerezovej ocele s triedou zaťaženia K3.
Plastové sítko na zachytávání nečistot podlahových vpustí Chuděj s nástavcem 125 x 125 a 150 x 150 mm.
Protizápachová vodní hladina zabraňuje zpětnému šíření zápachu z kanalizace uvnitř podlahových vpustí Chuděj.
Protizápachová suchá klapka zabraňuje zpětnému šíření zápachu z kanalizace uvnitř podlahových vpustí Chuděj.
Nerezová příruba a 5 ks šroubů pro snadnou montáž hydroizolačních materiálů podlahových vpustí Chuděj.
Plastový límec včetně těsnícího kroužku, který slouží pro snadnou montáž hydroizolačních materiálů. Rozměry činí 220 x 220 mm, průměr připojení D 115.
Zajištění límce pro izolaci, které se umisťuje mezi límec a korpus vpusti.
Těsnící sada o-kroužeků pro podlahové vpusti Chuděj PVSU a PVBU.








































Hľadáte príslušenstvo k tovaru vo vašom košíku?
Je vám k dispozícii v tejto ponuke.
Foto - Chuděj PVSU 50 (univerzální)
Foto - Chuděj PVSU 50 (univerzální)
Foto - Chuděj PVSU 50 (univerzální)
Foto - Chuděj PVSU 50 (univerzální)
Foto - Chuděj PVSU 50 (univerzální)
Foto - Chuděj PVSU 50 (univerzální)
Foto - Chuděj PVSU 50 (univerzální)
Foto - Chuděj PVSU 50 (univerzální)
Foto - Chuděj PVSU 50 (univerzální)
Foto - Chuděj PVSU 50 (univerzální)
Foto - Chuděj PVSU 50 (univerzální)
Foto - Chuděj PVSU 50 (univerzální)
Foto - Chuděj PVSU 50 (univerzální)
Foto - Chuděj PVSU 50 (univerzální)
Foto - Chuděj PVSU 50 (univerzální)
Foto - Chuděj PVSU 50 (univerzální)
Foto - Chuděj PVSU 50 (univerzální)
Foto - Chuděj PVSU 50 (univerzální)
Foto - Chuděj PVSU 50 (univerzální)
Foto - Chuděj PVSU 50 (univerzální)
Foto - Chuděj PVSU 50 (univerzální)
Foto - Chuděj PVSU 50 (univerzální)
Foto - Chuděj PVSU 50 (univerzální)
Foto - Chuděj PVSU 50 (univerzální)
Foto - Chuděj PVSU 50 (univerzální)
Foto - Chuděj PVSU 50 (univerzální)
Foto - Chuděj PVSU 50 (univerzální)
Foto - Chuděj PVSU 50 (univerzální)
Foto - Chuděj PVSU 50 (univerzální)
Foto - Chuděj PVSU 50 (univerzální)
Foto - Chuděj PVSU 50 (univerzální)
Foto - Chuděj PVSU 50 (univerzální)
Foto - Chuděj PVSU 50 (univerzální)
Foto - Chuděj PVSU 50 (univerzální)
Foto - Chuděj PVSU 50 (univerzální)
Foto - Chuděj PVSU 50 (univerzální)
Foto - Chuděj PVSU 50 (univerzální)
Foto - Chuděj PVSU 50 (univerzální)
Foto - Chuděj PVSU 50 (univerzální)
Foto - Chuděj PVSU 50 (univerzální)
Diskusia
Pridať otázkuSkryť