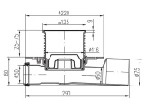
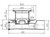
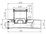
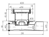
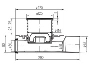
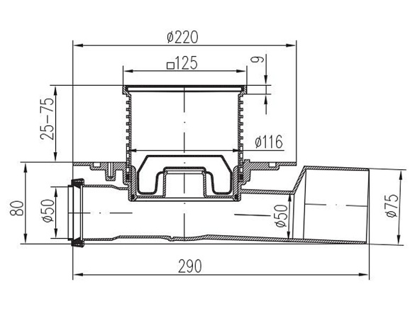
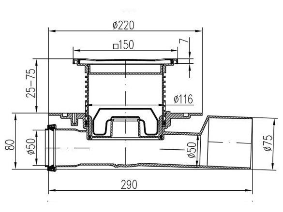
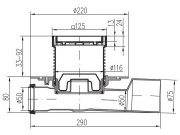
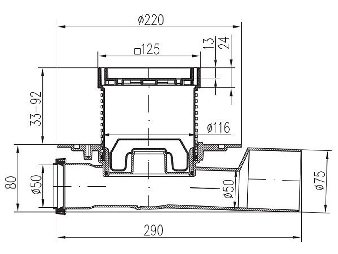
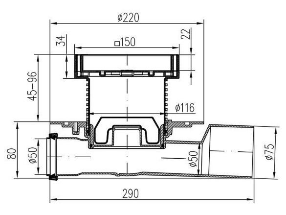
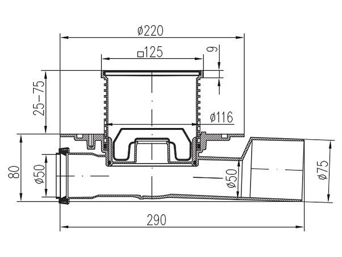
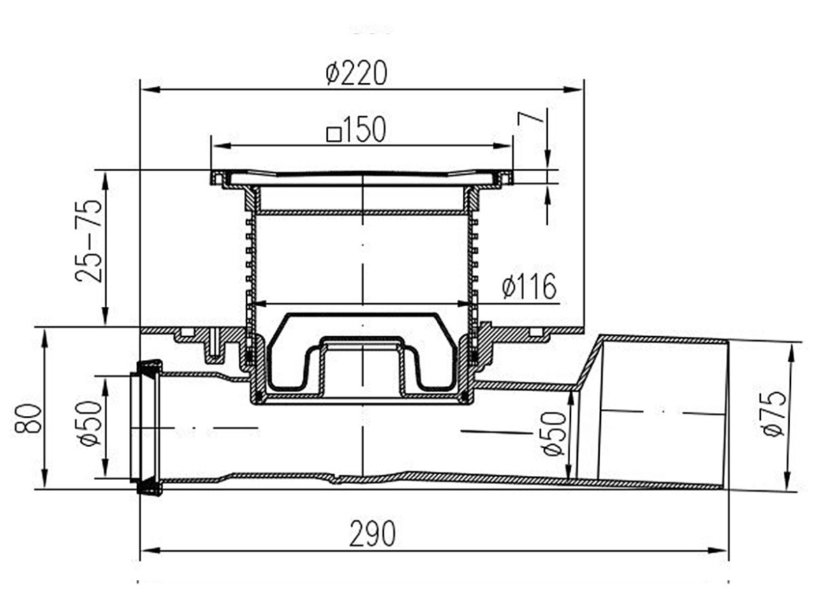
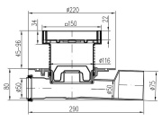
Univerzální konfigurovatelná vpusť s unikátním protizápachovým systémem, redukcí a průběžným napojením. Vyrobeno z PP, PS a nerezové oceli, volitelný design mřížky s možností pro zadláždění, volba příruby, lze zabudovat pro boční odtok D 50 / D 75.
Podrobné info
Inštalácia |
|
| Kotvenie | betonáž |
|---|---|
| Pripojenie spodné | nie |
| Pripojenie bočné | D50 / D75 |
Zaťaženie |
|
| Trieda zaťaženia | K3 |
| Nosnosť | 0,3 t |
| Norma | EN 1253 |
Rošt |
|
| Otvory | áno |
| Uchytenie | skrutkové |
| Antikorózna ochrana | nerez |
| Materiál roštu | oceľ / polypropylén |
| Farba | strieborná |
| Tvar | hranatý |
| Rozmery | 125 × 125 mm / 150 × 150 mm |
Vpusť |
|
| Materiál vpustu | polypropylén |
| Farba | čierna, šedá |
| Tvar | kruhový |
| Výška | 105 – 155 / 113 – 172 / 125 – 176 |
Perametre |
|
| Pôvod | Vyrobené v ČR |
| Záruka | 2 roky |
| Značka | Chuděj |
| Parametry produktu: | |
Chuděj Neptun PVP 50/75 (univerzální, průběžná) je univerzální boční podlahová vpusť s redukcí a průběžným napojením, určena pro koupelny, technické místnosti, kuchyně, balkony a terasy. Třída zatížení K3, tepelná odolnost do 70 °C, zkoušeno dle normy EN 1253. Potrubí lze zabudovat do D 50 z obou stran a z druhé i do D 75.
Volitelný výběr mřížky umožňuje volbu ze šesti různých provedení designu. Stříbrná mřížka je vyrobena z nerezové oceli DIN 1.4301 nebo z plastu, které zaručují odolnost vůči korozi, okolnímu namáhání a rozdílným teplotám vody. Nerezová mřížka Ceramics slouží pro možnost zadláždění. Výšku vpusti lze uživatelsky upravit dle potřeb pomocí pilky.
Plovák Neptun (24 - 44 l / min) je unikátní systém společnosti Chuděj, který při poklesu vodní hladiny nebo vyschnutí sifonu uzavře odtok vpusti plovákem a tím dokonale zabrání zpětnému pronikání zápachu. Těleso vpusti je vyrobeno z polypropylenu a umožňuje volbu o vybavení nerezovou přírubu s 5 ks šroubů pro snadnou montáž hydroizolačních materiálů.
Náhradní nástavec pro podlahové vpusti Chuděj v celoplastovém provedení nebo s nerezovým rámečkem o rozměru 125 x 125 mm.
Kulatý nástavec pro podlahové vpusti Chuděj v celoplastovém provedení pro nerezovou mřížku o průměru 137 mm
Náhradní nástavec pro podlahové vpusti Chuděj v nerezovém provedení o rozměru 150 x 150 mm.
Náhradní nástavec s nerezovým rámečkem a možností volby s celonerezovým povrchem nebo s možností pro zadláždění. Rozměry činí 125 x 125 mm
Náhradní nástavec s nerezovým rámečkem a možností volby s celonerezovým povrchem nebo s možností pro zadláždění. Rozměry činí 150 x 150 mm
Náhradní podstavec pro nástavec 125 s možností volby s celonerezovým povrchem nebo s možností pro zadláždění. Rozměr činí 125 x 125 mm.
Náhradní podstavec pro nástavec 150 s možností volby s celonerezovým povrchem nebo s možností pro zadláždění. Rozměr činí 150 x 150 mm.
Voliteľná mriežka pre podlahové vpusty Chudej z nerezovej ocele DIN 1.4301 o sile 1,5 mm pre nadstavec 125 × 125 mm.
Okrúhla mriežka pre kanalizačné a podlahové vpusty Chudej z nerezovej ocele s triedou zaťaženia K3.
Plastové sítko na zachytávání nečistot podlahových vpustí Chuděj s nástavcem 125 x 125 a 150 x 150 mm.
Unikátní systém společnosti Chuděj, který při poklesu vodní hladiny nebo vyschnutí sifonu uzavře odtok vpusti plovákem a tím dokonale zabrání zpětnému pronikání zápachu.
Unikátní systém společnosti Chuděj, který při poklesu vodní hladiny nebo vyschnutí sifonu uzavře odtok vpusti plovákem a tím dokonale zabrání zpětnému pronikání zápachu.
Nerezová příruba a 5 ks šroubů pro snadnou montáž hydroizolačních materiálů podlahových vpustí Chuděj.
Plastový límec včetně těsnícího kroužku, který slouží pro snadnou montáž hydroizolačních materiálů. Rozměry činí 220 x 220 mm, průměr připojení D 115.
Zajištění límce pro izolaci, které se umisťuje mezi límec a korpus vpusti.
Těsnící o-kroužek pro sprchové žlaby z plastu a podlahové vpusti Chuděj. Rozměry činí 107 x 3,5 mm.
Těsnící sada o-kroužeků pro podlahové vpusti Chuděj PVP a PVBU 50 / 75.






































Hľadáte príslušenstvo k tovaru vo vašom košíku?
Je vám k dispozícii v tejto ponuke.
Foto - Chuděj Neptun PVP 50/75 (univerzální, průběžná)
Foto - Chuděj Neptun PVP 50/75 (univerzální, průběžná)
Foto - Chuděj Neptun PVP 50/75 (univerzální, průběžná)
Foto - Chuděj Neptun PVP 50/75 (univerzální, průběžná)
Foto - Chuděj Neptun PVP 50/75 (univerzální, průběžná)
Foto - Chuděj Neptun PVP 50/75 (univerzální, průběžná)
Foto - Chuděj Neptun PVP 50/75 (univerzální, průběžná)
Foto - Chuděj Neptun PVP 50/75 (univerzální, průběžná)
Foto - Chuděj Neptun PVP 50/75 (univerzální, průběžná)
Foto - Chuděj Neptun PVP 50/75 (univerzální, průběžná)
Foto - Chuděj Neptun PVP 50/75 (univerzální, průběžná)
Foto - Chuděj Neptun PVP 50/75 (univerzální, průběžná)
Foto - Chuděj Neptun PVP 50/75 (univerzální, průběžná)
Foto - Chuděj Neptun PVP 50/75 (univerzální, průběžná)
Foto - Chuděj Neptun PVP 50/75 (univerzální, průběžná)
Foto - Chuděj Neptun PVP 50/75 (univerzální, průběžná)
Foto - Chuděj Neptun PVP 50/75 (univerzální, průběžná)
Foto - Chuděj Neptun PVP 50/75 (univerzální, průběžná)
Foto - Chuděj Neptun PVP 50/75 (univerzální, průběžná)
Foto - Chuděj Neptun PVP 50/75 (univerzální, průběžná)
Foto - Chuděj Neptun PVP 50/75 (univerzální, průběžná)
Foto - Chuděj Neptun PVP 50/75 (univerzální, průběžná)
Foto - Chuděj Neptun PVP 50/75 (univerzální, průběžná)
Foto - Chuděj Neptun PVP 50/75 (univerzální, průběžná)
Foto - Chuděj Neptun PVP 50/75 (univerzální, průběžná)
Foto - Chuděj Neptun PVP 50/75 (univerzální, průběžná)
Foto - Chuděj Neptun PVP 50/75 (univerzální, průběžná)
Foto - Chuděj Neptun PVP 50/75 (univerzální, průběžná)
Foto - Chuděj Neptun PVP 50/75 (univerzální, průběžná)
Foto - Chuděj Neptun PVP 50/75 (univerzální, průběžná)
Foto - Chuděj Neptun PVP 50/75 (univerzální, průběžná)
Foto - Chuděj Neptun PVP 50/75 (univerzální, průběžná)
Foto - Chuděj Neptun PVP 50/75 (univerzální, průběžná)
Foto - Chuděj Neptun PVP 50/75 (univerzální, průběžná)
Foto - Chuděj Neptun PVP 50/75 (univerzální, průběžná)
Foto - Chuděj Neptun PVP 50/75 (univerzální, průběžná)
Foto - Chuděj Neptun PVP 50/75 (univerzální, průběžná)
Foto - Chuděj Neptun PVP 50/75 (univerzální, průběžná)
Diskusia
Pridať otázkuSkryť