Domáca čistička odpadových vôd umožňuje efektívne čistenie pomocou ponorenej aeróbnej kultúry. Jednoduchý a takmer bezúdržbový systém pre potreby 4-6 člennej domácnosti.
Podrobné infoParametre | |
| Počet osôb | 4 – 6 |
| Materiál | polyetylén |
| Uloženie | do zeme |
| Spôsob čistenia | mechanicko – biologický |
| Hmotnosť | 248 kg |
| Využitie | rodinný dom / rekreačný objekt |
| Vypustenie | drenáž / vsakovanie do pôdy |
| Potrebná hĺbka výkopu | 2 m |
| Potrebný priestor výkopu | 2,44 m² |
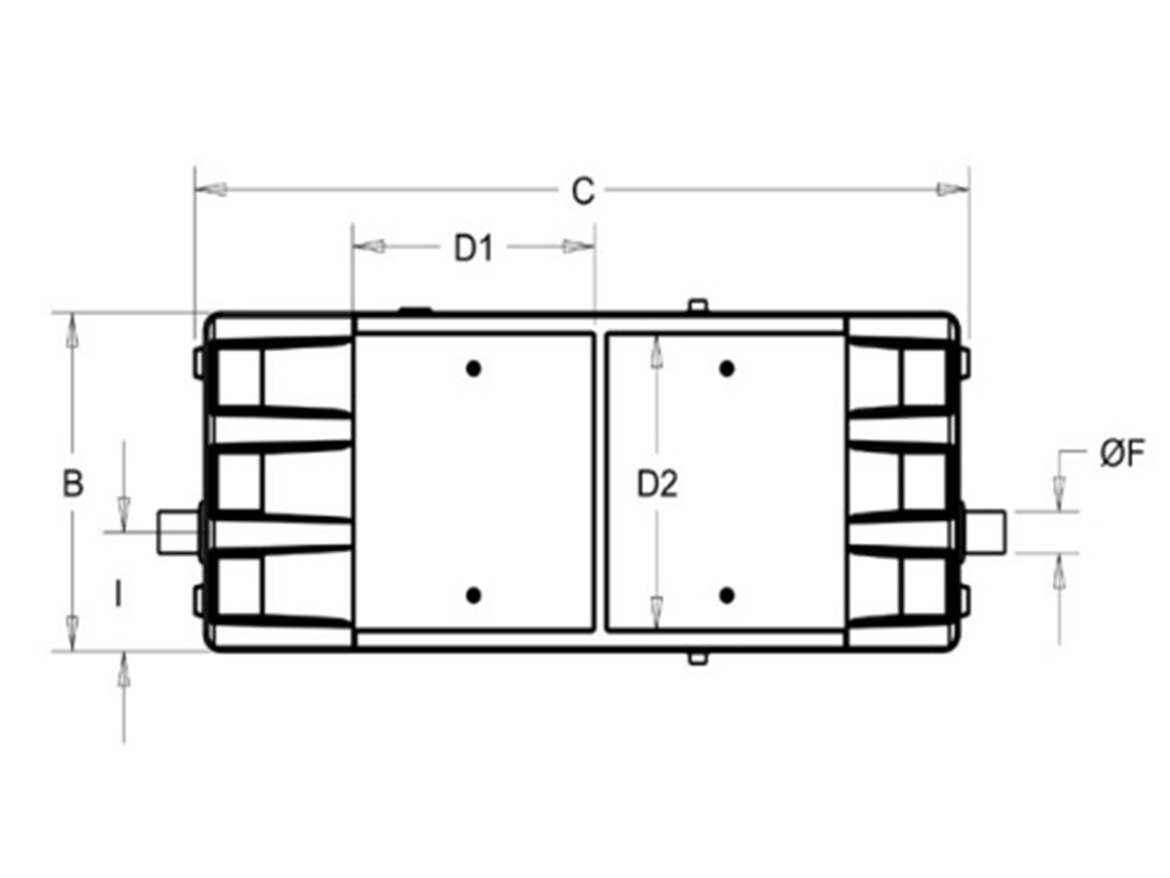
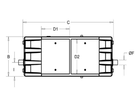
Rozmery | |
| Dĺžka | 2200 mm |
| Šírka | 940 mm |
| Výška | 1630 mm |
| Výška výtoku | 390 mm |
| Priemer výtoku | 110 mm |
Perametre | |
| Pôvod | Vyrobené v DE |
| Záruka | 2 roky |
| Značka | MEA |
Mikročistička zaručuje úpravovu odpadových vôd pochádzajúcich z obydlia. Dodávaná je s integrovaným kompresorom a skladá sa z troch častí, ktorými sú primárny odkalovač, prevzdušňovacia nádrž a dočistenie.
V primárnom odkalovači sú zachytené najväčšie plávajúce častice. Vytekajúca voda ďalej postupuje do prevzdušňovacej nádrže, kde sú pomocou čistiacich baktérií odstránené rozpustené nečistoty. Baktérie sú zásobované kyslíkom, ktorý dodáva integrovaný kompresor. V tretej časti čističky prebieha dočistenie, kde nerozpustné časti klesajú ku dnu a sú prečerpávané späť do primárneho odkalovača.
Údržbu čističky je nutné vykonávať približne raz za 10-12 rokov, kedy je nutné čističku odstaviť, vyčerpať celý objem a vyčistiť primárny odkalovač od usadenín. Nie je potrebné pridávať baktérie.
| VybranéRozmery | Vybrané | |
|---|---|---|
| Dĺžka | C | 2200 mm |
| Šírka | B | 940 mm |
| Výška | A | 1630 mm |
| Výška výtoku | H | 390 mm |
| Priemer výtoku | F | 110 mm |
| Váha | 248 kg |




Hľadáte príslušenstvo k tovaru vo vašom košíku?
Je vám k dispozícii v tejto ponuke.
Nie, najprv si vytvorte objednávku cez e-shop, len tak zaistíme dostupnosť materiálu pri osobnom vyzdvihnutí.
Samozrejme a radi :)
Nestrácajme spojenie – môžeme si zavolať a prebrať dopravu, platbu alebo napríklad konkurenčnú ponuku. Určite to spolu vymyslíme.
Založte si Buildex účet, my vám dáme 4 € na prvú objednávku a aktivujeme ďalšie výhody.
My, spoločnosť Buildex Group s.r.o, IČO 5362431, používame súbory cookies na zaistenie funkčnosti webu a s vaším súhlasom o. i. aj na personalizáciu obsahu našich webových stránok. Kliknutím na tlačidlo „Rozumiem“ súhlasíte s využívaním cookies a predaním údajov o správaní na webe na zobrazenie cielenej reklamy na sociálnych sieťach a reklamných sieťach na ďalších weboch.
Čítať ďalej Menej
Maximálne pohodlné prezeranie na mieru. To vďaka sušienkam dokážeme zariadiť. Košík si bude pamätať váš nákup, bez odhlásenia vám nehrozí otravné zadávanie údajov a zobrazovať sa vám bude iba relevantný obsah. O čo sa s nami podelíte je úplne vo Vašej réžii, všetko bude ale v maximálnom bezpečí.
Nevyhnutné dáta pre správne fungovanie stránky, ktoré musia byť vždy povolené.
Pomáhajú nám pochopiť, čo by vás mohlo zaujímať, na čom naše stránky prezeráte, čo nám na webe nefunguje a podobne.
Umožňujú zobrazovať vám vhodný obsah na základe produktov, článkov a stránok, ktoré ste u nás navštívili.
Vďaka nim uvidíte na reklamných miestach u nás a na iných sieťach to, čo by vás mohlo zaujímať a nie nemiestne, náhodné kampane.
Foto - Mikročistička odpadových vôd MEA BXM
Foto - Mikročistička odpadových vôd MEA BXM
Foto - Mikročistička odpadových vôd MEA BXM
Foto - Mikročistička odpadových vôd MEA BXM
Diskusia
Dobrý den, zajímalo by mě, jakým způsobem je z čističky vypouštěna odpadní voda.
Dobrý den, děkujeme za dotaz.
Vypuštění upravené odpadní vody se realizuje dvěma způsoby. Prvním je drenáž a následné vsakování do půdy. Druhým je vypuštěním do povrchového
vodního prostředí, pod podmínkou dodržení platných technických předpisů.
Tým Buildex.
Je potřeba v rámci údržby přidávat do mechanismu bakterie?
Dobrý den, děkujeme za dotaz.
Do čističky není potřeba přidávat bakterie. V rámci údržby stačí čističku jednou za cca 10-12 let odstavit, vyčerpat a vyčistit primární odkalovač od usazenin.